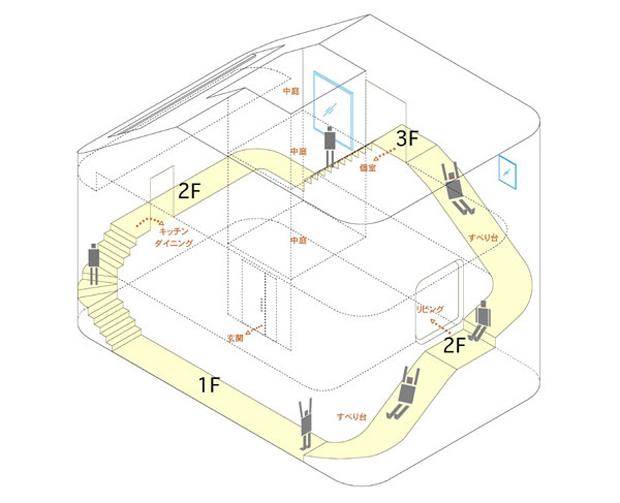
House with slide («Дом с горкой») – трехэтажный жилой дом, построенный архитектурной студией Level architects для семьи с несколькими детьми. Уникальной особенностью необычного жилья стала самая настоящая детская горка, которая используется в качестве альтернативной лестницы-портала для младшего поколения.
Горка непрерывно огибает структуру минималистского японского дома по периметру, лишь в двух местах превращаясь в ступеньки, посредством которых взрослые могут перемещаться с этажа на этаж, не прибегая к помощи веселой детской забавы. Альтернативный «портал» предоставляет удобный доступ почти к каждой из комнат, преимущественно расположенных в центре дома.

Необычный объем поместил в себе прихожую, гостиную, библиотеку, игровую площадку, детские, спальни, кухню и санузлы. Так как пространство, в котором расположена горка-лестница, занимает большую часть периметра дома, некоторые помещения получают дневной свет через окна в крыше и продуманную систему взаимодействия отверстий, прозрачных стеклянных перегородок и, разумеется, искусственного освещения. 

Как и многих владельцев современного японского жилья, хозяев House with slide не смущает минималистская архитектура, лишенная просторных фасадных окон. Уже ставшее традицией решение планировки с двойными стенами, вполне целесообразно для шумных и плотно застроенных перенаселенных городов Японии, в которых собственное жилище может стать единственным «оазисом» спокойствия, уединения и приватности частной жизни.




Источник